List
物件一覧

【A01】茅ヶ崎市白浜町「Varia白浜町」|中古 一棟売りアパート

物件名
Varia白浜町(ヴェアリアしらはまちょう)
価格
12,510万円(税込み)土地+建物
利回り
5.06%(税込み/満室時想定)
年間予定賃料収入
6,336,000円(満室時想定)
物件へのお問い合わせ

Varia白浜町は、菱沼海岸まで徒歩8分、海岸とGDO茅ヶ崎ゴルフリンクスに隣接した、ウェルビーイングな湘南暮らしが叶う賃貸住宅です。
白浜町の土地にふさわしい格式高い温かみを演出、正面の屋外階段は細いスリット状の縦手すりにすることで、スタイリッシュで洗練された外観となっています。
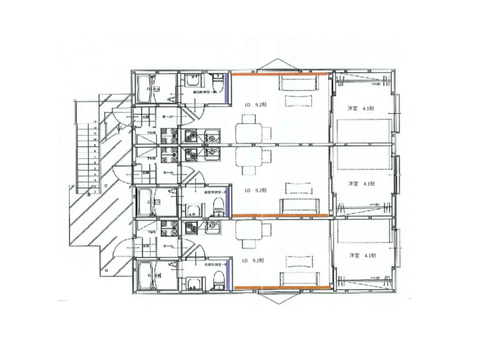
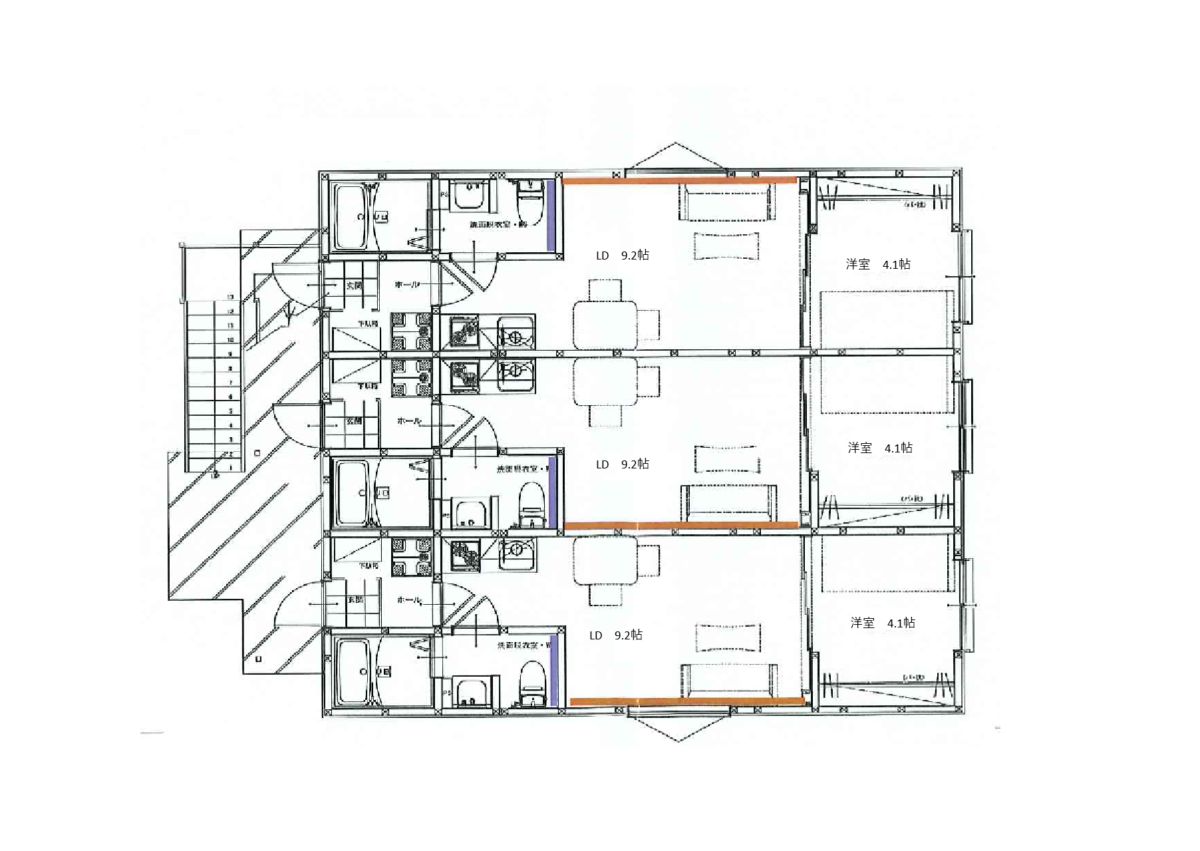
居室は1LDKの間取りでありながら、仕切り戸を解放することで、広い1ルームとしても使うことのできるフレキシブルに変化対応する間取りとしました。

■最寄駅/JR東海道本線「茅ヶ崎」駅 徒歩28分 ■所在地/茅ヶ崎市白浜町1-16 ■土地面積/182.53㎡(55.21坪)※実測 ■土地権利/所有権 ■地目/宅地 ■都市計画/市街化区域 ■用途地域 一種低層 ■建ぺい率/50% 容積率/100% ■防火指定/準防火地域 ■法制上の制限/盛土規制法 ■接道状況/約4.7m公道に9.8m接道接道 

【物件概要】
■種類/共同住宅 ■構造・規模/木造・地上2階建(軸組工法)6戸 1階:90.01㎡ 2階:90.01㎡ ■延べ床面積 180.02㎡ ■間取り/1LDK 各住戸の専有面積:30.00㎡ ■築年月/2024年9月

【設備・引渡し】
■設備/公営水道・公共下水・プロパンバス ■現況/賃貸中(満室稼働) ■引渡日/相談

【備考】
敷地面積最低限度100㎡、建物の高さの最高限度10m、オーナーチェンジ物件
土地には都市ガス引き込み済み、但し本物件はプロパンガスを使用しています。
屋根;スレート葺き、外壁;防火サイディング張り、軒天;繊維混入ケイ酸カルシウム板

■取引形態/媒介 ■情報更新日/2026年2月9日 ■更新予定日/2026年3月15日

上記表示物件は、掲載中に売却済、売却中止、あるいは価格変更となる場合があります。(現地販売会・内覧予約日程に関しては、変更となる場合があります。ご了承ください)
詳細は弊社までお問合せ下さい。掲載情報と現況が異なる場合は現況が優先となります。 取引態様の欄に「媒介(仲介)」と表示された物件は「仲介物件」ですので、価格の他に仲介手数料が必要となります。(仲介手数料には消費税及び地方消費税がかかります。)
※年間予定賃料収入は、満室時における1年間予定賃料収入です。(共益費等を含む)
※年間予定賃料収入が確実に得られることを保証するものではありません。
※「予定利回り」は、公租公課・共益費・その他当該物件を維持するために必要な費用の控除前のものです。

この物件の取り扱い会社
株式会社丸山アーバン 藤沢市藤沢223-2
宅地建物取引業者 神奈川県知事(2)第30124号

物件へのお問い合わせ